Local commercial

Ancien restaurant à rénover de 250 m² sur 2 niveaux avec dépendances.

Visite virtuelle 3D | Plan d’étage 2D | Drone | Photographie HDR | Relevé architectural par scanner 3D | Plateforme collaborative | Nuage de points pour l’architecture | Ortho-images | Plans 2D architectural | Maquette numérique BIM |

Photographie HDR d'un restaurant à rénover.

Innovhomes numérisation classique

Visite virtuelle 3D | Visualisation du bien à 360°

Une visite virtuelle 3D dans l’immobilier et la rénovation est une représentation immersive d’un bien immobilier, permettant à un utilisateur de naviguer dans les différentes pièces d’un bâtiment comme s’il s’y trouvait physiquement.

Facile d’utilisation et accessible en ligne, sur ordinateur, tablette et smartphone, cette visite immersive 3D correspond au premier livrable issu de notre relevé sur site. Elle s’adapte parfaitement à chaque étape d’un projet immobilier (achat, expertise, diagnostic, rénovation, vente, gestion et promotion).

Ses avantages sont multiples :

Faites le test vous-même !

Visualiser un exemple en appuyant ici !

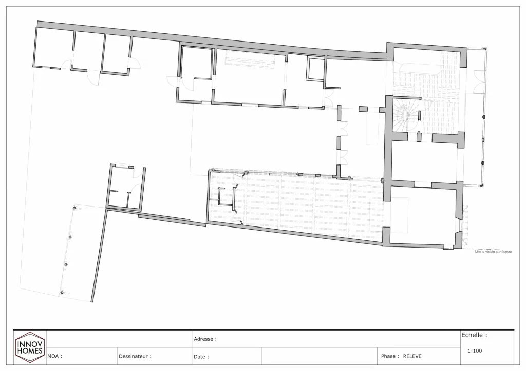
Plan d'étage 2D

Nos lasers scanners sont équipés de lidar*.

Cette technologie nous permet de numériser rapidement tous les espaces intérieurs en quelques minutes pour produire des plans d’aménagement 2D avec une précision de l’ordre de 98%.

Un plan d’étage 2D est une représentation graphique simplifiée à deux dimensions, conçue pour montrer la disposition et l’organisation des différents éléments tels que les murs, les pièces, les portes, les fenêtres, et parfois les meubles.

Ces plans d’étages 2D sont des outils polyvalents et apportent un plus pour :

La vente et la gestion immobilière :

La rénovation :

Associés à la visite virtuelle 3D, ils facilitent l’estimation des coûts (matériaux et main-d’œuvre) et l’obtention de devis pour les rénovations intérieures légères et complètes.

Objectifs : Remettre aux entreprises une base d’informations communes afin d’obtenir des devis travaux précis avant déplacement 

*lidar : Appareil qui émet un faisceau laser et en reçoit l’écho (comme le radar), permettant de déterminer la distance d’un objet.

Photographie aérienne par drone

Les prises de vues aériennes par drone sont utilisées pour documenter l’état existant d’une construction, valoriser un bien immobilier, suivre l’avancement de travaux de rénovation ou modéliser en 3D un ouvrage sur le principe de la photogrammétrie**.

*DGAC : Direction générale de l’aviation civile

** Photogrammétrie : Procédé qui consiste à prendre des photos aériennes sous différents angles et à les analyser à l’aide de logiciels spécialisés afin de reconstruire une représentation tridimensionnelle précise d’un terrain ou d’un bien immobilier.

Visite virtuelle aérienne
Prise de vues 360° par drone

La visite 360° par drone est un outil d’observation dans le secteur de l’immobilier et de la rénovation.

Photographie HDR pour l'immobilier

Nos lasers scanners sont équipés de la technologie HDR*.

La photographie HDR est un outil polyvalent dans tous les aspects de l’immobilier, que ce soit pour mettre en valeur un bien (vente, location ou promotion), documenter son état, ou suivre des travaux (inspection).

Générées à partir de nos visites virtuelles 3D, nos clients ont la possibilité de capturer des images HDR à partir de ces visites virtuelles en choisissant par eux-mêmes l’angle de vue souhaité et mettre en avant certains détails spécifiques.

Cette solution offre plusieurs avantages tels que sa flexibilité, dans la mesure ou chaque élément du bien est visible donc photographiable, ainsi que sa qualité des rendus visuels.

*HDR (High Dynamic Range)

Innovhomes numérisation technique

Relevé architectural par scanner 3D et drone

Solution permettant de capturer avec précision les dimensions et les détails intérieurs et extérieurs d’un ouvrage afin d’en créer une représentation numérique en 3D.

Innovhomes propose deux technologies de captation : La lasergrammétrie par scanner laser (LIDAR) et la photogrammétrie par drone

Nos techniciens 3D interviennent sur tous types d’ouvrages (secteur résidentiel, tertiaire, monuments historiques et industrie). Le délai moyen de captation est d’une journée sur site.

Cette technologie nous permet de générer :

Les avantages par rapport à un relevé traditionnel : précision accrue, gain de temps pour tous, accès aux zones difficiles, sécurité améliorée, documentation exhaustive.

Technicien 3D en cours de relevé numérique d'un ouvrage.

Visite virtuelle technique Faro Sphère®
Plateforme collaborative

Plateforme collaborative permettant de centraliser, de sécuriser et de visualiser les données 3D recueillies au moment du relevé architectural (#images panoramiques 360°, nuage de points).

Cette solution, principalement utilisée par les professionnels de la construction et de l’ingénierie, a pour objectif de faciliter l’analyse et la communication entre les différents acteurs du projet.

Disponible en ligne pendant toute l’étude du projet, cette plateforme dispose de plusieurs outils dont l’objectif est de gagner en productivité, en qualité, en rentabilité tout en diminuant les risques d’erreurs.

 

Outils disponibles dans la plateforme :


 

Pour tirer pleinement parti de la plateforme FARO Sphere, Innovhomes peut vous accompagner dans la formation de vos équipes.

Visualiser un exemple en appuyant ici !

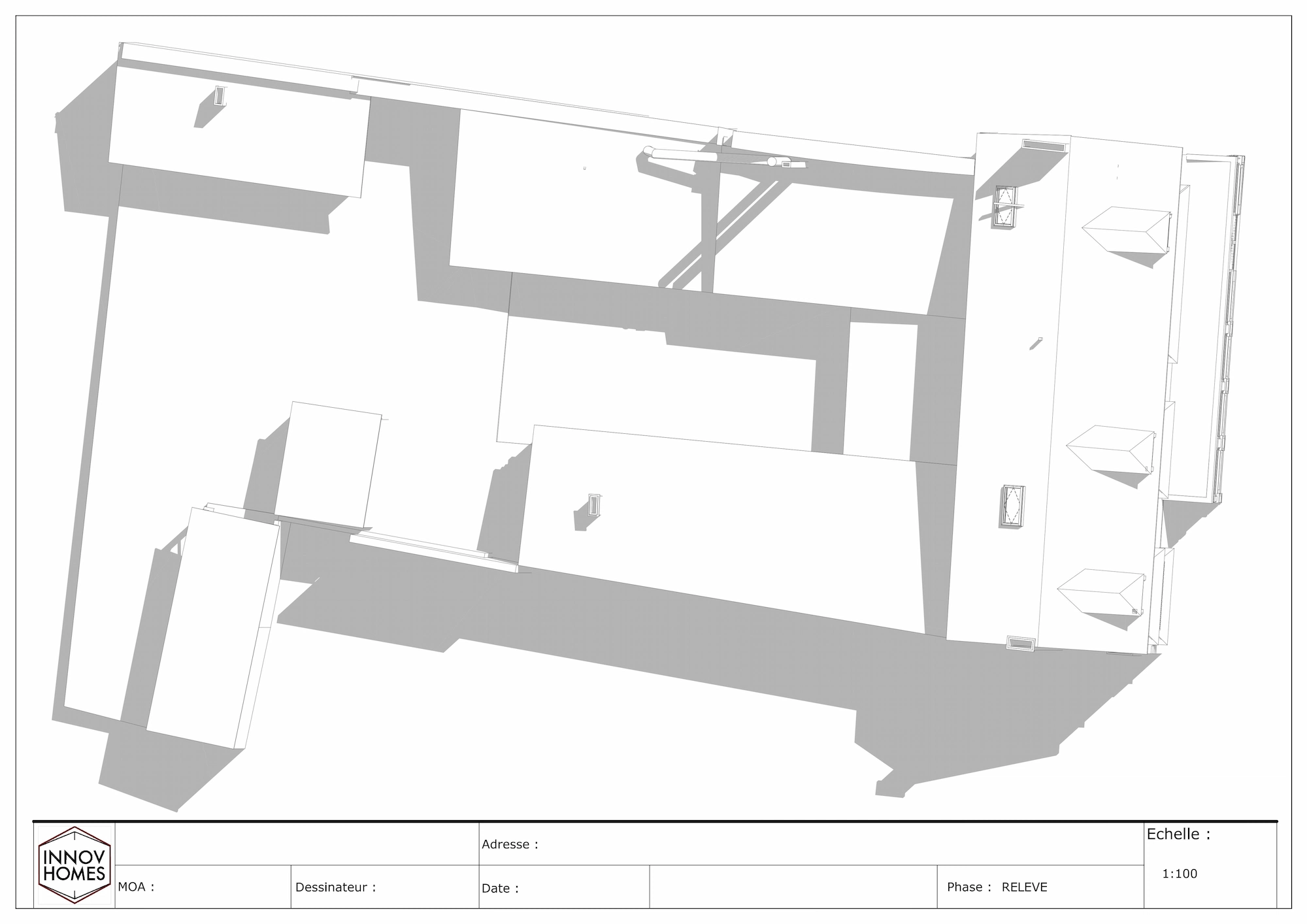
Nuage de points pour l'architecture

Un nuage de points est une représentation numérique en 3D d’un bâtiment d’une grande précision. Il est constitué de millions de points, dont chacun est placé selon un repère de coordonnées précis (x, y et z) correspondant à sa position dans l’espace.

Réalisé à partir d’un relevé par scanner laser 3D ou par drone, ce fichier servira de base de travail à :

Nos nuages de points sont livrés aux formats E57/PTS/ RCP ou RCP

 

Ortho-images

Une « ortho-image » ou « image géoréférencée » est une représentation photographique très précise d’un ouvrage ou d’une zone spécifique.

Issues du nuage de points, elles sont corrigées de toutes déformations géométriques et projetées dans un plan de référence à échelle, nous permettant de réaliser des plans rapidement et avec un haut niveau de précision et de détails.

Les avantages : 

Nos ortho-images sont livrées aux formats TIFF, PNG, JPEG, PDF

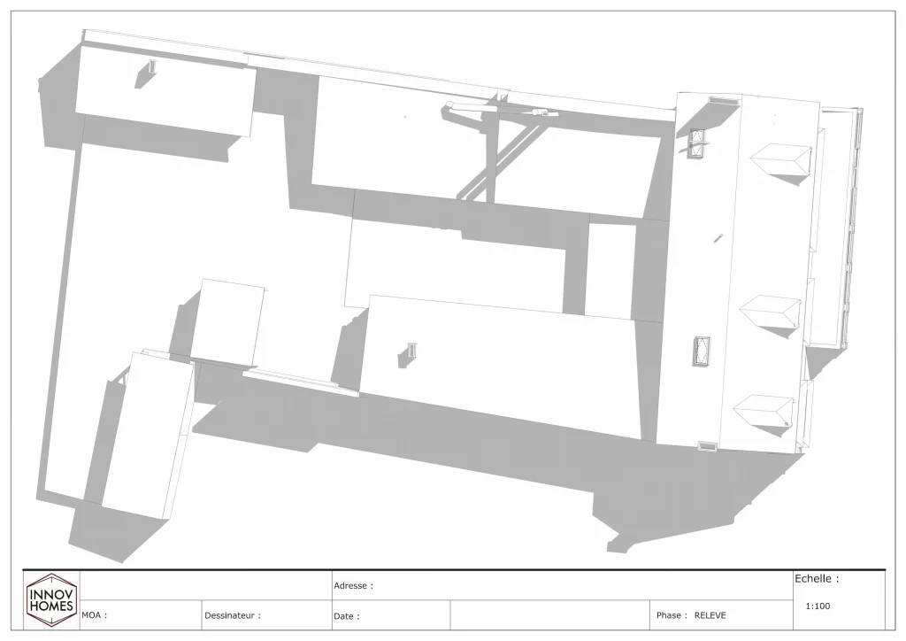
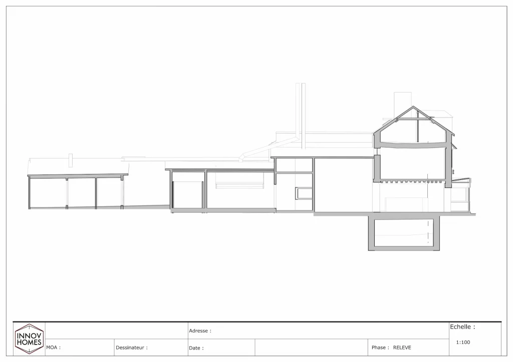
Plan 2D architectural

Réalisé à partir des ortho-images, un plan 2D architectural est un dessin technique en 2 dimensions et à échelle qui représente avec précision la configuration actuelle d’un bâtiment ou d’une structure au moment du relevé, tel qu’il existe réellement sur le terrain.

Servant de base de travail pour les architectes, ingénieurs et professionnels du bâtiment dans des projets de rénovation, ils permettent d’établir un diagnostic précis, de planifier des interventions et d’obtenir les autorisations administratives nécessaires à la rénovation(#déclaration préalable/Permis).

Innovhomes réalise tout type de plans :

Nos plans sont livrés aux formats DWG ou DXF et PDF avec ou sans annotations.

Maquette numérique BIM*

Réalisée à partir du nuage de points, une maquette BIM* est une représentation numérique complète d’un ouvrage en 3D permettant de visualiser le bâtiment dans toutes ses dimensionset de manière détaillée.

Contrairement aux plans 2D architecturaux qui extraient seulement des données géométriques sur un plan, une maquette numérique 3D offre des indications supplémentaires telles que la volumétrie, des informations sur les matériaux, la structure du bâtiment, les systèmes mécaniques…

Le choix entre une mise en plan 2D classique ou une modélisation BIM 3D dépend de plusieurs facteurs liés à la complexité du projet de rénovation.

Sa réalisation est conseillée pour des projets de rénovation complète ou lourde.

Nos maquettes numériques sont livrées aux formats :

IFC (Industry Foundation Classes), (Revit), (Archicad) ou (Sketchup) avec exportation des plans2D aux formats DWG/DXF/PDF

Type : Architecture et Structure de l’état existant / MEP en option selon projets

Niveau de détail appliqué : LOD 300 / Niveau BIM : 1

*BIM : « Building information modeling »

Formulaire